WEL HET DAT DOAN
ARCHITECTUUR
BART VOS
Foto's: iPhone van Bart

Situatie

Het bestaande huis is een oude monumentale Herenboerderij uit 1839, waarvan de eerste funderingen al in 1400 zijn gelegd. De woning ligt op een grote kavel in een agrarische omgeving. Voor de transformatie van deze monumentale boerderij was de visie van een ervaren villa architect cruciaal. We hebben de oude boerderij omgebouwd en een kelder aangebouwd.
Opdracht

Het was de opdrachtgever zijn wens een ruimte te creëren waar kinderen en kleinkinderen konden samenkomen. Daarom hebben we een kelderruimte gesitueerd met een keuken, een eetkamer, een tv-kamer, een wellness-ruimte en een zwembad, ook moest er een ruimte zijn om zowel binnen als buiten kunst te plaatsen. De opdrachtgever heeft een grote interesse in kunst en architectuur en dat zien we terug in het ontwerp.
Inspiratie
Van de monumentencommissie kregen we geen toestemming om binnen de monumentale boerderij verbinding te zoeken met een kelder. Daarom moesten we naar een oplossing zoeken om op een zorgvuldige en creatieve manier de verbinding te maken met de nieuwbouw. Dat hebben we gedaan door de boerderij en de entree van de kelder te verbinden met een volglazen doorgang. Het trappenhuis daarvan is uitgevoerd in koper en dient als sculpturaal element in de tuin. Het moest als een soort kunstwerk zichtbaar zijn in het landschap.



Uitgangspunten en kenmerken

Een belangrijk uitgangspunt was dat de aanbouw vanuit het bestaande huis niet zichtbaar mocht zijn. Daarom hebben we een kelder gerealiseerd, met een grasdak met lichtgaten. Een brutale ingreep, maar wel een die zowel het landschap als de monumentale boerderij respecteert. De trap moest een sculptuur worden, met een volglazen corridor als aansluiting naar de boerderij. De aanbouw moest een stoere uitstraling krijgen. Daarom hebben we gebruik gemaakt van rauwe materialen, zoals beton en cortenstaal. In het interieur hebben we contrast gezocht tussen strak beton, marmer en een antieke houten vloer.
Indeling
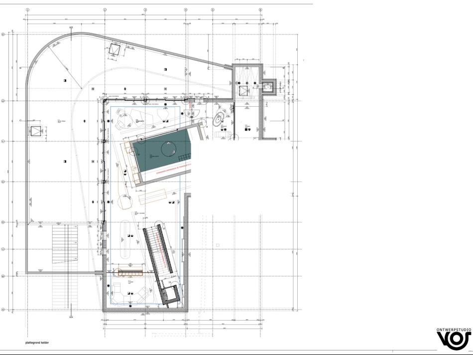
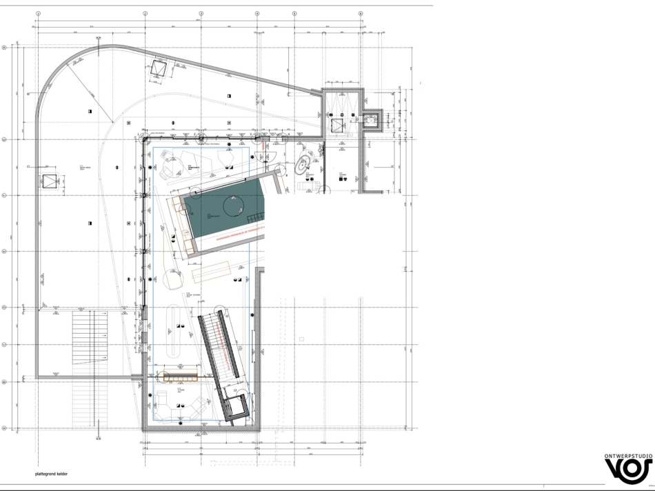
De kelder bestaat uit een keuken, een eetkamer, een tv-kamer, een wellness-ruimte en een zwembad. De ruimtes vloeien in elkaar over en zijn individueel afsluitbaar met schuifdeuren of glazen puien. De woonkamer is gesitueerd aan de noordzijde, en heeft een grote glazen pui, die grenst aan een half ingegraven en deels overdekt terras, bedoeld als beeldentuin, maar ook om beschutting te vinden in het open landschap.

Interieur

Typisch voor VOS is dat architectuur en interieur hand in hand gaan, waarbij architectuur een grote rol speelt in het interieur. Binnen dit project is het statement de entree naar de kelder in de vorm van een koperen trappenhuis. Het trappenscultuur heeft niet alleen een praktische functie, maar springt ook, zowel binnen als buiten, in het oog en is zodoende een statement in het interieur geworden. Ook het terras is onderdeel van het interieur. Net als het verhulde zwembad, dat op een subtiele manier, met smalle vensters, zichtbaar is in het huis.
Tuin/omgeving
Van een aangelegde tuin is geen sprake: het graslandschap dient als tuin. Het is een uitsnede uit het landschap, waar de woning in opgaat.

Heb je plannen voor een bijzondere woonplek?
We denken graag met je mee — van de eerste ideeën tot een ontwerp dat klopt in elk detail.
Neem gerust contact met ons op voor een vrijblijvend gesprek.
Resultaat























