Navigatie overslaan

VIL­LA LINDENHOF

ARCHITECTUUR
BART VOS

Foto's: TEAM VOS EN ALEXANDER VAN BERGE

DE OPDRACHT

Villa Lindenhof is een karakteristieke jaren ’30-villa met een uitgesproken rieten kap en baksteenarchitectuur in de stijl van de Amsterdamse School. De woning is rijk aan details en ontworpen met een sterke samenhang tussen vorm, materiaal en omgeving. De opdrachtgever wilde deze gezinswoning haar oorspronkelijke karakter teruggeven, maar wél met het comfort van nu. De wens was om de historische kwaliteit te behouden en tegelijkertijd een eigentijdse leefomgeving te creëren die beter aansluit bij het dagelijkse gebruik.

DE OUDE SITUATIE

Door latere aanpassingen had het monumentale pand veel van zijn oorspronkelijke karakter verloren. Aanbouwen uit de jaren zeventig en tachtig verstoorden het beeld, originele indelingen waren aangepast en het kleurgebruik week sterk af van de historische staat. Ook technisch was onderhoud noodzakelijk: houtwerk, voegwerk en riet vertoonden slijtage en de isolatie was verouderd of ontbrak volledig.

DE NIEUWE SITUATIE

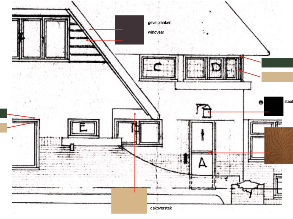
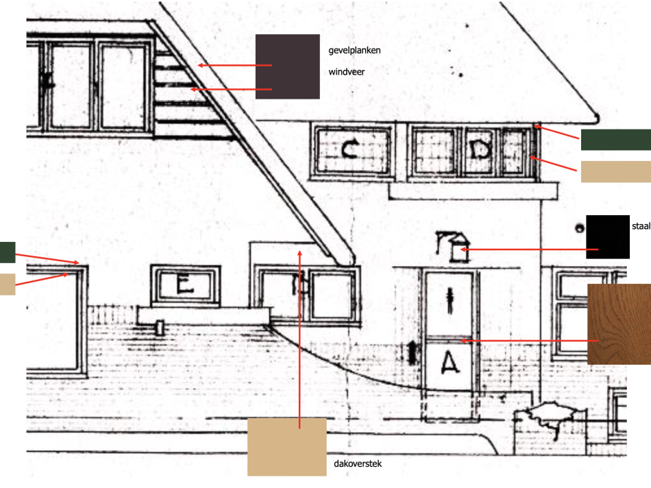
Bij de restauratie van Villa Lindenhof stond het herstellen van de oorspronkelijke kwaliteit centraal. De gevels zijn hersteld, raamindelingen teruggebracht en het schilderwerk uitgevoerd in de oorspronkelijke kleuren volgens kleurhistorisch onderzoek. Binnen is de indeling opnieuw in balans gebracht met respect voor de oorspronkelijke verhoudingen en zichtlijnen. Ook verduurzaming kreeg een plek binnen het ontwerp: vacuümglas, vloerverwarming en isolatie zijn zorgvuldig geïntegreerd zonder afbreuk te doen aan het monumentale karakter.

RESULTAAT

Heb je plannen voor een bijzondere woonplek?

We denken graag met je mee; van de eerste ideeën tot een ontwerp dat klopt in elk detail.
Neem gerust contact met ons op voor een vrijblijvend gesprek.

Wat is op uw situatie van toepassing?
Optioneel, wilt u ons al iets vertellen over uw plannen?

Naar aanleiding van uw aanvraag nemen wij z.s.m. contact met u op om een afspraak te maken.